Cooling Your Embedded System: What Can Your Open Standard Architecture Handle?
Embedded computing systems for Mil/Aero applications are often conduction-cooled in an ATR or nonstandard chassis. However, there are many designs that require 19" rackmount systems with forced-air cooling. As more processing performance is packed into tight spaces, enclosures that provide advanced cooling options are increasingly common.
The open-standard embedded architectures have different recommended limitations for power. Sometimes these are electrical pinout limitations, and other times they are recommended thermal limitations. There are “tricks of the trade” to extend the power for certain architectures as well as the ability to maximize the thermal limits.
For the Mil/Aero architectures of OpenVPX, MicroTCA, and AdvancedTCA, we’ll look at ways to expand the cooling limits in both forcedair cooled and conduction-cooled solutions. The article will include info on front-to-rear and side-to-side cooling solutions as well as axial fans and reverse impeller blower concepts.
Front-to-Rear Cooling
With the construction of the majority of cabinet enclosures, many Mil/Aero applications require front-to-rear cooling. Many avionics have air conditioning systems that can pull air out of the rear of the enclosure. But, there are many avenues for front-to-rear cooling with different levels of effectiveness.
There are four main ways of implementing front-to-rear cooling. The fans can be placed in the rear directly behind the card cage to pull the heat directly out. This approach, however, can be problematic for filtering the air effectively. The fans in this system can provide about 81 CFM each and pull the air directly out to the rear of the enclosure. While this can certainly do the job in many applications, systems with very high power processors may need another approach. Further, if rear I/O is required there could be challenges in removing rear modules efficiently and having enough chassis depth available.
Another front-to-rear cooling approach is when the cards are mounted horizontally. An air intake area is usually placed on the front left of the system (Figure 1) with exhaust on the left rear side of the enclosure. This method can save rack height and space, particularly when there are not a lot of slots required. But, the approach is one of the least effective for cooling as the air intake and exhaust are small. For example, a 4U horizontal mount chassis using this method can cool about 90 Watts/slot.
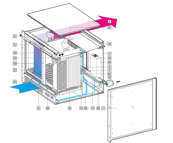
Alternatively, if the boards are mounted vertically, the air intake would often be below the card cage going across the full 17.8" opening of the front of the enclosure. The tube axial fans in the rear can pull the exhaust along a wide area as well. In these two approaches, the airflow takes an “S” pattern as seen in the first Figure. In this configuration, the air needs to take bends nearly 90 degrees twice. Air baffles can be used to improve the airflow performance. This is a common approach for embedded systems, but there is a way that is more effective.
Another design technique is using powerful air-pulling fans placed immediately above the boards in the card cage. With fans that pull in one axis (to the top of the chassis) and blow the air out in another axis (through the rear of the chassis), the air bends to reach the fan are cut in half. Figure 2 shows an illustration of this approach. This pulling approach reduces the backflow of the air and the backpressure that hampers the performance.
Table 1 shows estimations of the wattage per slot that an enclosure needs to cool standard 6U x 160 Eurocard boards. Of course, the space allocated for air intake/exhaust, the board impedances, hole size, acoustic noise level limits, etc., all affect the cooling performance. So, these are simply ballpark approximations.
Static Pressure
Static pressure gages resistance to the airflow and how equal the flow is maintained in all directions. In embedded systems, it is particularly important to ensure the air can be moved through the tight spaces between the board slots. The reverse impeller approach creates over 91mm (H2O) of static pressure, confirming that it can provide effective cooling in densely packed enclosures and subracks. By comparison, a typical 19 rackmount fan tray, consisting of three 4.7" x 4.7" 18W (110 CFM at free delivery) fans, generates only 0.22-0.40 (H2O) of static pressure. The estimated (operating) static pressure point of a fan assembly mounted inside a fully loaded subrack is 0.3-0.5" (H2O). Under those conditions, one reverse impeller blower assembly provides at least 75% higher airflow than a typical 19 rackmount fan tray with 3 tube-axial muffin fans.
How Hot Are Your Boards?
OpenVPX is very popular in Defense based systems. 3U OpenVPX boards can reach over 100-200W and theoretically much higher. In practical use there are lower tiers that are in the 15- 30W range, medium power of 50-70W range, and higher power of 80-110W range. Often, you’ll have one or two of the higher power with a few of the medium and lower power versions. Poor heat dissipation can not only cause system failures, but significantly shorten component life. So it’s critical to cool a system properly.
Reverse impeller blowers can generate 191 CFM of airflow with 3.6 inches (H2O) of static pressure. Using the reverse impeller blowers as seen in Figure 2 in a 9U VPX chassis can provide heat dissipation of over 2400W in redundant mode. Even if a fan went out, it could dissipate over 2.4 kW while the faulty fan was hot-swapped. Surprisingly, the weight of the newest generation of fans has decreased 25% as well. If the PSUs are front accessible and swappable, they also provide Level Two maintenance, which is a requirement for some applications.
Can a similar solution be achieved for 3U OpenVPX boards? Yes, it is feasible for the reverse-impeller approach to reside in a 5U enclosure with front to rear cooling. You would have about 1U below the card cage for air intake and 1U above for the blowers. However, a special sheet metal cover would need to be employed to allow for the removal of the fans for them to be swappable. Otherwise, the rail gets in the way and a larger height is required. Furthermore, there is not much of a gap between the cards and the fans if a fan were to fail. Of course, this is the case in many chassis platforms such as a 4U bottom-to-top cooling enclosure. Going to a 6U enclosure would ensure hot-swappability of the fans and enough space between the fans and the cards for the other fans to support a fan that fails.
For MicroTCA, there is an advantage in using a push-pull approach in a front-to-rear approach since the modules are smaller (approx. 75mm vertically mounting). However, rear I/O is not available unless you go to the larger double modules (approx. 150mm tall). MicroTCA is typically limited to about 86W/slot. Most AMCs are in the 20-30W range, however processors can generate up to 50-80W. The main limitation is the 3A per pin maximum on the connectors. However, there is a “trick of the trade” to extend the power (and it is part of the original specification); by using a 2nd connector “tongue” on an AMC module, you can add a great deal of the I/O, extended channels, or additional power. Using this technique, AMC boards can handle about 120W of power per slot.
With this fact in mind, the reverse impeller approach would be suitable. However, most MicroTCA systems are horizontal mount to save space. There are 1U rugged MicroTCA solutions that meet MIL-STD 810G and 901D for shock and vibration. It has 6 AMC slots with built-in system management, IEEE 1588/SyncE/GPS for precision timing – all in a 1U height! However, the cooling range for this system is in the 60W/slot range.
AdvancedTCA requires a minimum of 200W/slot cooling per the specification, but in Telco applications the powerful 8U x 280mm processor cards are churning out over 350W in some cases. The problem with AdvancedTCA in many front-to-rear cooled defense applications is that it would require a vertical mount chassis that is often at least 13U high.
Many defense designs only require 5-8 slots, so the vertical mount 14-slot chassis is over half empty. A creative approach is to open up the middle of the chassis to pull air directly to the rear. This adds 2U to the enclosure, but it is still significantly less size and weight than a 13U chassis. Figures 3a and 3b show the thermal simulation of an 8U AdvancedTCA enclosure with 6 payload slots that has front to rear cooling. The images show the heat distribution across slots using the CPTA reference guidelines for front boards (0.15in H2O @ 30 CFM) @ 55C ambient, as well as the total pressure results. The enclosure was able to easily cool 300 Watts per slot. By combining the switch slots with the shelf managers (a requirement in the ATCA spec), 2 slots can be saved. This allows a full 6 payload slots in addition to the dual switch slots.
Conduction Cooling
Conduction-cooled modules are attractive to use in Mil/Aero systems because they are inherently ruggedized and often sealed enclosures. But, the higher power boards make this approach less practical without the use of expensive liquid-flow-through or spray cooling techniques that also increase size and weight. When you start to go over 400W Total Power Dissipation (TPD) in a 3U chassis (let’s assume 5 slots), and about 500W TPD in 6U chassis, using just a natural convection sealed enclosure may not be feasible. At times, the conduction-cooled enclosure will reside inside a larger enclosure, giving some leeway for blowing additional heat out of the system. Adding a simple heat exchanger in the rear of the chassis can allow close to double the TPD in the system.
Many conduction-cooled designs are moving to more purpose-built designs for specific applications. There are certainly disadvantages when it comes to an open standard, namely repeatability and the economies of scale in volumes, compared to the modular enclosure approach. However, a design engineer can achieve excellent SWaP advantages. Figure 4 shows a 1U 2-slot conduction-cooled enclosure for AMC modules (used in MicroTCA systems).
Other Design Techniques
There are other design tricks-of-the-trade to enhance thermal management. Individual air flow management ensures targeted air routing and optimum heat dissipation. As described earlier, baffles to redirect airflow can help fine-tune the thermal management of a chassis platform. The guide rails and horizontal rails can feature a narrow design which is less of an impedance. Further, with a modular design, the enclosure spacing between the slots (the pitch for example) and other parts of the chassis can be modified to address specific thermal concerns.
Acoustic noise is a concern in many applications. This design approach has low noise (48dBa at 3/4 speed and a life of approx. 60,000 hrs. at 40°C), making this blower a good fit in a wide range of applications.
System Management
Alarm control and system management are important issues in some designs. Very common in telecom, other applications are adopting similar approaches. In fact, the VITA 46.11 system management specification for OpenVPX completely leverages the PICMG system management for AdvancedTCA and MicroTCA. The cooling approaches we have discussed employ all the required alarm, I2C, and IPMB outputs required for system management and alarm functions.
More Efficient and Reliable Cooling
There are several ways to cool an enclosure – there are even multiple ways to cool an enclosure with front-to-rear cooling. For many Mil/Aero embedded computing applications using forced-air cooling, using tube-axial fans in the rear provides enough thermal management. For applications looking to optimize SWaP, the reverse impeller blower approach can provide a powerful cooling solution for higher power 3U or 6U OpenVPX boards.
This article was written by Eran Weragama, Engineering Manager, Pixus Technologies (Waterloo, ON, Canada). For more information, Click Here .
Top Stories
INSIDERAerospace
New Clean Planet Facility Converts Waste Plastic to Sustainable Aviation Fuel
INSIDERMaterials
Researchers Discover Material That Conducts Heat Better Than Copper
NewsManned Systems
Downstream Take on Electric Construction Vehicles
NewsPower
Mercedes Sticks with EVs After Making a Few Adjustments
NewsGovernment
Forvia Hella Ready with ADB; NHTSA: Not So Fast
INSIDERAerospace
New Study Finds Lean-Burn Engines Don’t Reduce Aircraft Contrail Formation
Webcasts
Automotive
Virtual. Physical. Connected: How Smart Testing Is Changing Automotive...
Energy
Battery Manufacturing & Simulation Summit 2026
Power
Virtual Screening of Materials for Increased Battery Performance
Software
Scaling SDV Development with Virtualization
Defense
High-Speed Connectivity for Next Generation Aerospace & Defense...
Electronics & Computers
Electronics Digital Twins: From Concept to Scalable Platform



